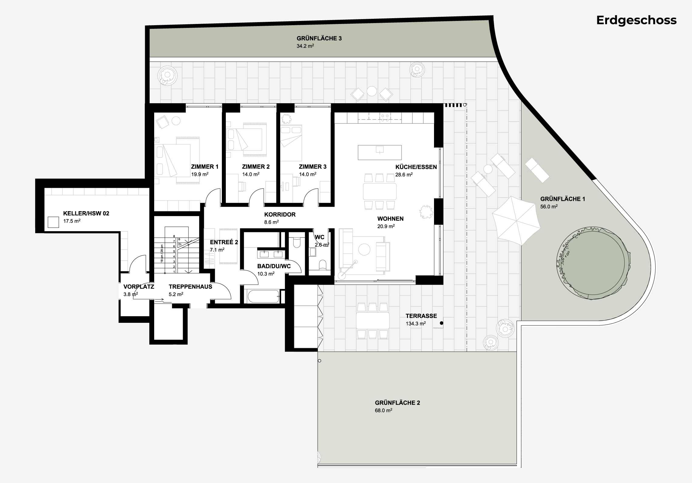
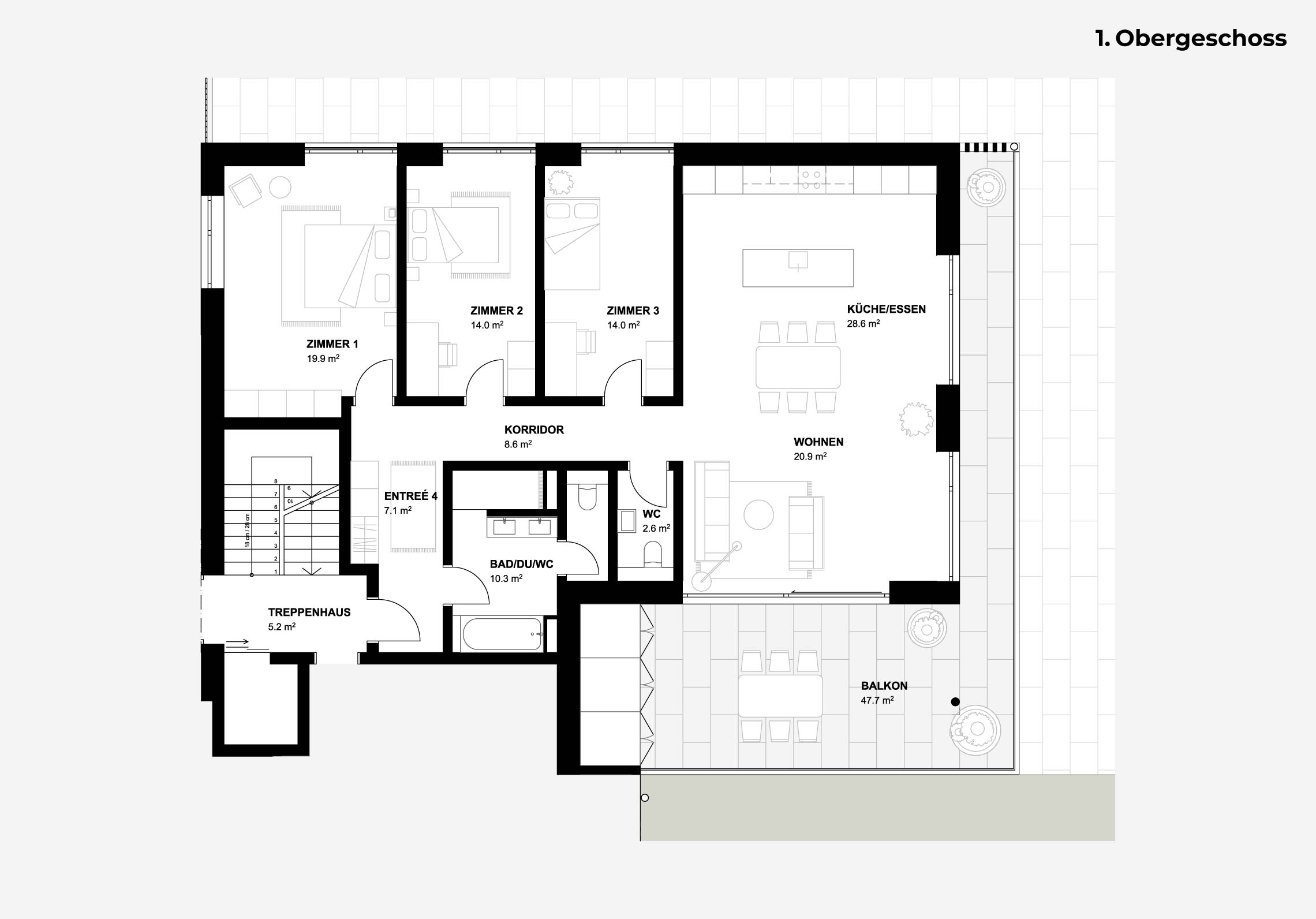
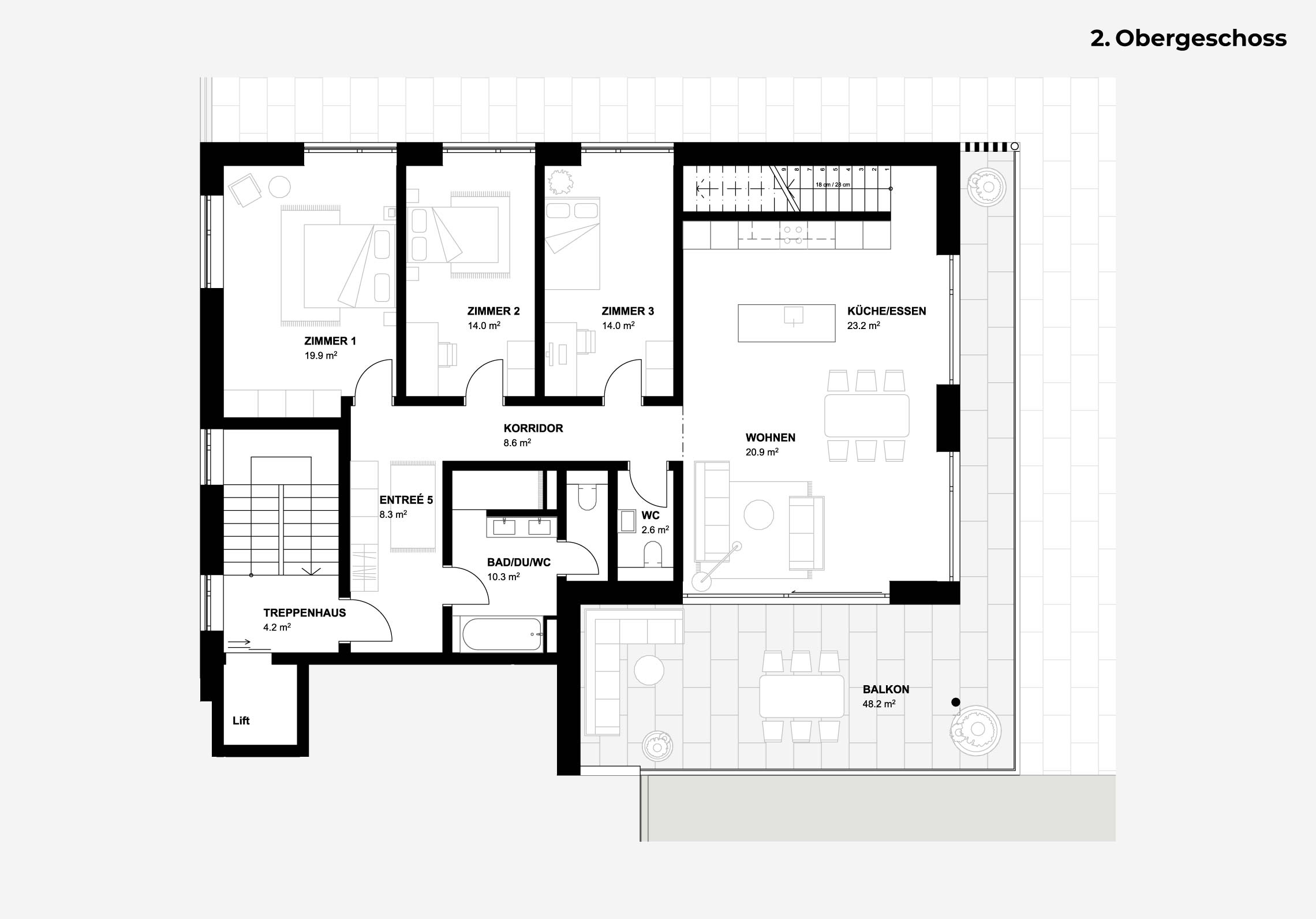
Attraktive Wohnungen in Triesenberg zu verkaufen.
Triesenberg bietet sonnige Höhenlage, Ruhe und eine beeindruckende Aussicht über das Rheintal. Das neue Mehrfamilienhaus an der Engistrasse liegt zentral, ruhig und nur wenige Gehminuten vom Dorfkern entfernt. Grosszügige Terrassen und eine einmalige Aussicht machen diese Wohnungen besonders attraktiv.









